La Roureda
HABITATGE UNIFAMILIAR A LA ROUREDA
La Canya, la Garrotxa
Arquitecta
Sílvia Costa (Eixida Arquitectura)
Promotor
Privat
Fotografia
Superfície d'intervenció
210 m2
Any de l'obra
2020-2022

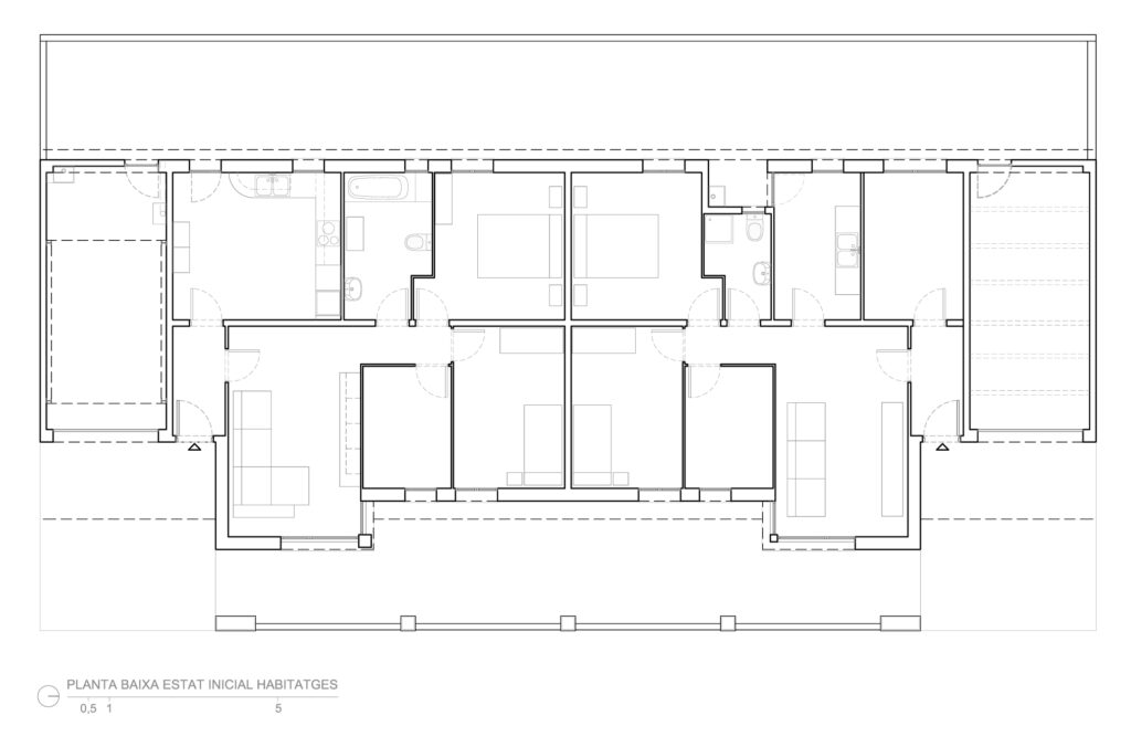
Aquest projecte parteix d’una oportunitat única i irrepetible: una jove parella que viu en una casa adossada de planta baixa té l’opció de comprar la casa simètrica a la seva, duplicant així la superfície del seu habitatge.
L’objectiu del projecte és doncs, transformar dues cases petites i compartimentades en una única llar que respongui a les necessitats de la família. Es planteja una reestructuració integral, apostant per espais amplis, connectats i de qualitat, optimitzant al màxim l’espai disponible, amb una organització fluida.
Un dels trets més característics del projecte ha estat l’eliminació dels falsos sostres en els espais principals, deixant a la vista les bigues prefabricades de formigó del sistema constructiu original. Aquesta decisió no només aporta caràcter i personalitat a l’habitatge, sinó que també rendeix homenatge al passat de les “cases barates” mostrant el seu sistema estructural.
A nivell estètic i funcional, cada espai s’ha dissenyat buscant la calidesa i el confort utilitzant materials nobles com la fusta natural i el vidre estriat.
Un altre punt clau del projecte ha estat la millora de l’envolupant de l’habitatge per garantir unes prestacions tèrmiques pròpies d’un habitatge contemporani. S’han aïllat tot l’envolupant i s’ha instal·lat un sistema de climatització i producció d’aigua calenta eficient que garanteix el confort tèrmic durant tot l’any, alhora que redueix el consum energètic i els costos associats.

























| Procés constructiu |




| Estat inicial |





